LABORATORIO CON ABITAZIONE INDIPENDENTE

Zona: Cerea - San Vito

€ 150.000,00

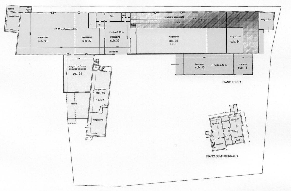
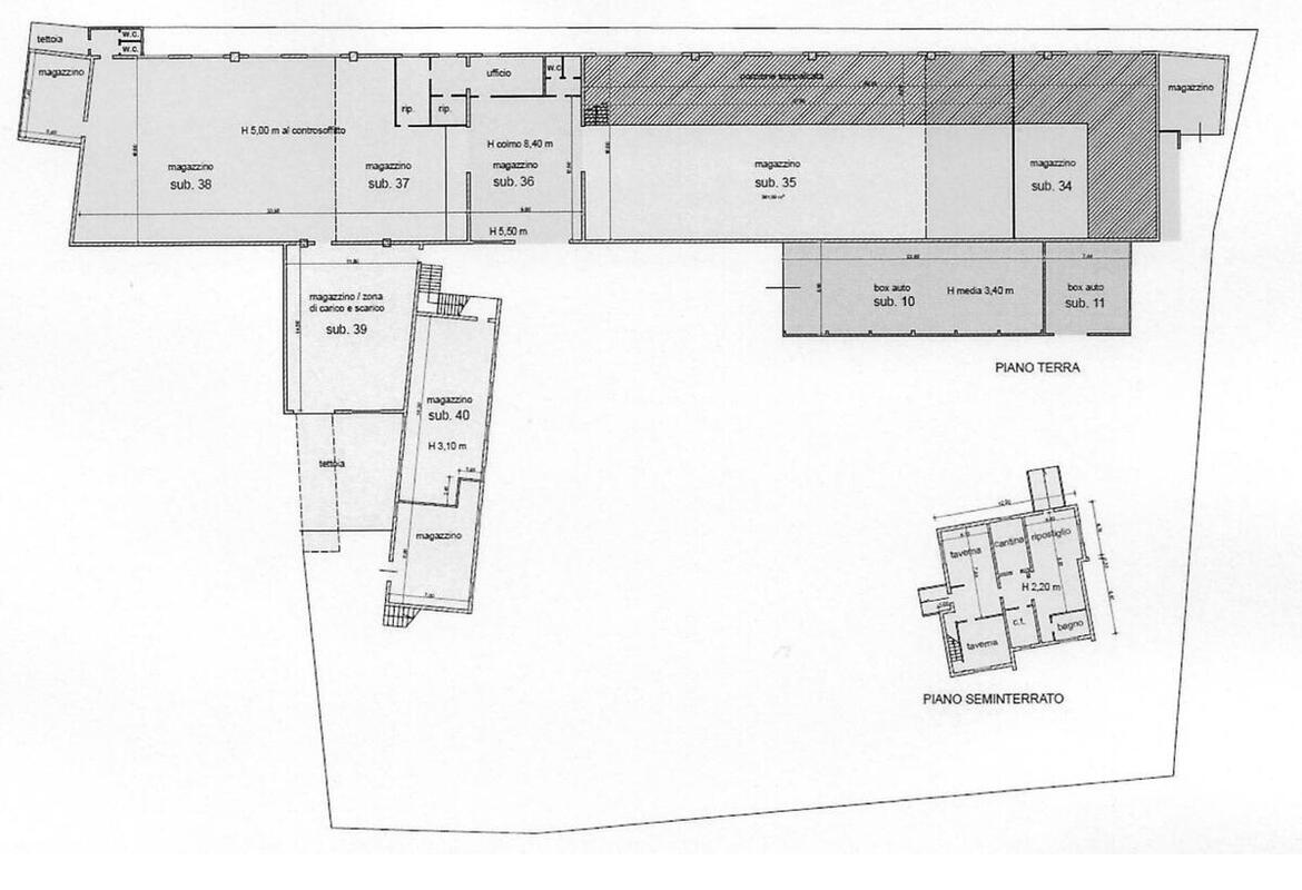
Cerea, nella frazione di San Vito, in zona residenziale ma al contempo circondata dal verde, proponiamo in vendita ampio laboratorio/magazzino, con adiacente zona di manovra per carico/scarico.
L'area su cui si estende è di circa 5000 mq e comprende magazzini, palazzina e ampia porzione di terreno, entrata indipendente per auto e camion su due strade.
Sono presenti un ufficio direzionale e vari locali.
Sul lotto è presente un'abitazione indipendente con garage, acquistabile separatamente al prezzo di 100000 euro;
Maggiori informazioni contattando i nostri uffici.

 

Tutti i campi contrassegnati da * sono obbligatori.

Acconsento al trattamento dei miei dati e ad essere ricontattato per le finalità indicate. Dichiaro di aver preso visione della Privacy Policy

Iscrivimi alla newsletter per ricevere periodicamente informazioni relative alle vostre iniziative promozionali e commerciali

Inviando....
Immobili simili